The new fire station at the entrance to the municipality of Weeze sets a clear architectural statement in appreciation of volunteer service. The floor plan is designed around the operational workflows of a modern fire station, while bright interior spaces, generous terraces, and a protected training yard provide ample room for social interaction and team life. The result is an attractive workplace for firefighters and, at the same time, a showcase for sustainable and future-oriented municipal architecture.

A Distinctive Entrance for the Municipality of Weeze
Confidently positioned at the town entrance, the new fire station presents itself as a clear landmark: its orientation and L-shaped building volume create a strong presence along the street, while the timber façade allows the building to blend harmoniously into its green surroundings. The stepped building form toward the southwest creates well-oriented, generous terraces with views of the training yard and the surrounding landscape. The representative street façade of the vehicle hall, with its high proportion of glazing, offers insight into the valuable work of the fire brigade and visual connections to the landscape beyond.
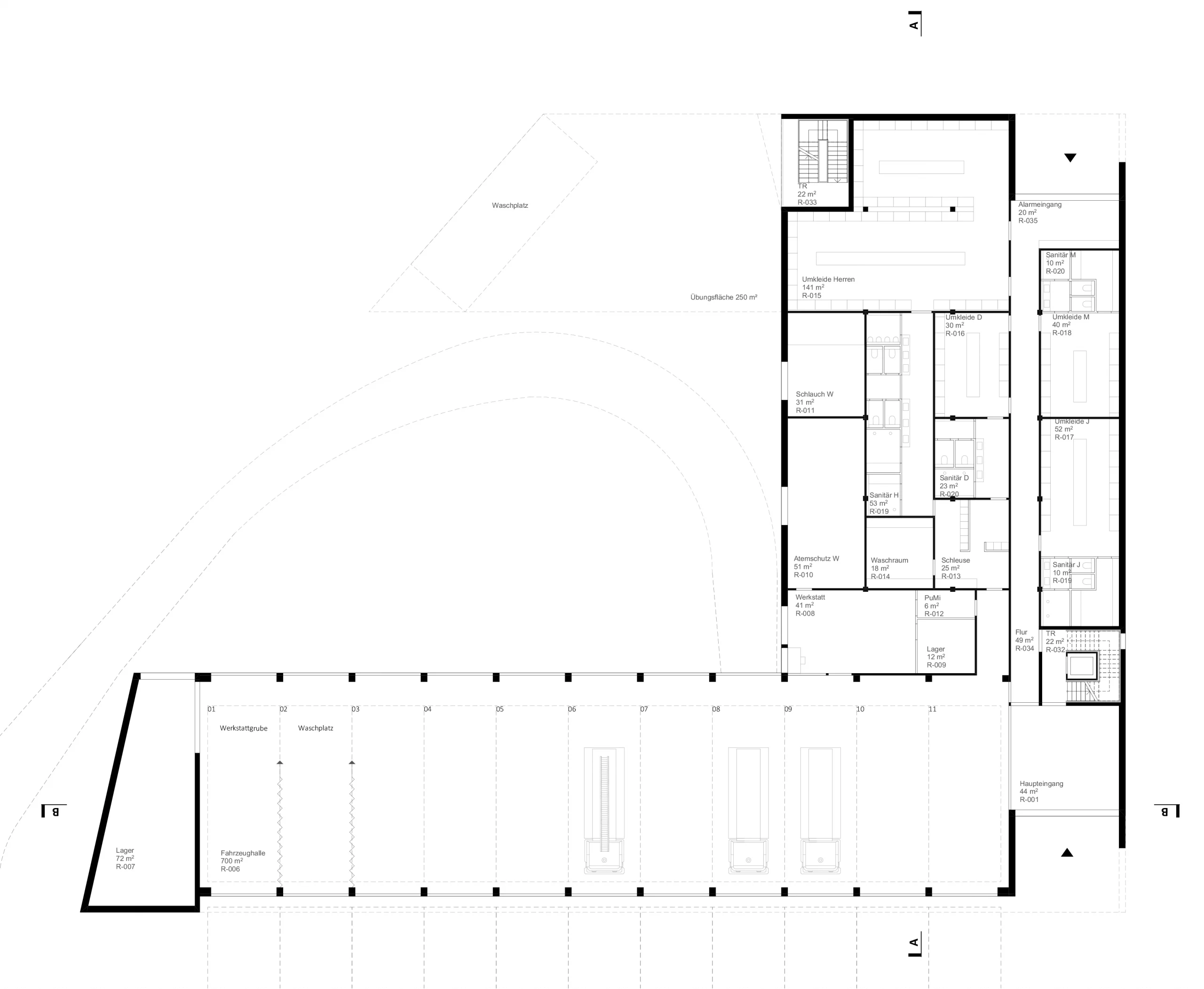
The single-story volume accommodates the vehicle hall, while all additional functions are organized within the two-story wing: components of the alarm chain and storage areas on the ground floor, and training rooms, operations control, offices, and related spaces on the first and second floors.
All external areas, visitor parking, alarm parking spaces, training yard, and alarm yard, are clearly structured and separated by the building itself. This ensures intuitive orientation for users and visitors and guarantees safe, smooth operational processes. At the same time, the building massing creates a protected courtyard that can be used in a variety of ways.
The training tower provides ideal conditions for firefighter training. As a vertical landmark, it also serves as a highly visible symbol for the Weeze Volunteer Fire Department.
Functionality and Aesthetics Hand in Hand


Every Second Counts in an Emergency
Short distances and carefully planned connections save valuable seconds in emergency situations. The layout therefore prioritizes user needs and the functional requirements of a fire station, ensuring optimal operational workflows and clear orientation.
In an emergency, the floor plan generates a directed flow of personnel through the building: via the alarm entrance, responding firefighters quickly reach the changing rooms and from there proceed directly into the vehicle hall.
The clear separation of arriving private vehicles and departing emergency vehicles is essential for safe traffic management during operations. Wider alarm parking spaces (2.90 m) allow for quick, maneuver-free parking and support a secure alarm chain.
Workshops and storage areas are directly connected to the vehicle hall. The storage space at the western end of the hall is accessible from both inside and outside, enabling efficient loading and unloading.
Generous window openings in the training rooms provide views of the surrounding landscape and visual oversight of the entire training yard.


